Funktioner översikt

Så fungerar Stiimo

Från uppladdad ritning till färdig mängdlista på några minuter. Här är en översikt av nyckelfunktionerna.

Boka demo

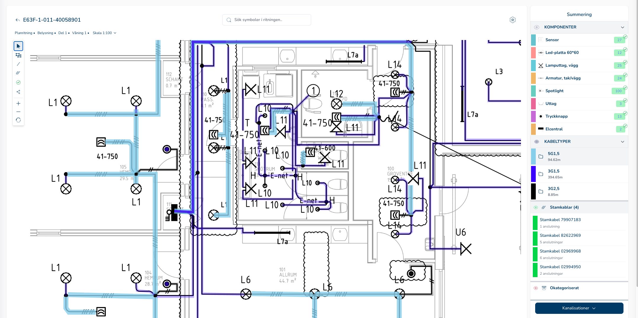
Kabeldetektion och längdmätning

Systemet mäter automatiskt kabellängder utifrån dragningar i ritningen. Ger en exakt översikt för planering och kalkyl.

  • Olika kabeltyper färgkodas
  • Längdmätning i meter
  • Snabb summering per plan/system
  • Hantering av kabelstammar

Hitta komponenter

AI markerar komponenter direkt i ritningen. Sök, editera och filtrera bland komponenter.

  • Automatisk symboligenkänning
  • Färgkodning av komponenter
  • Zoom och sökfunktion
  • Editera, lägg till och ta bort

Kanalisation & förläggningssätt

Från din kanalisationsritning så identifierar Stiimo kabelstegar, trådstegar och kabelrännor. Du kan ange höjder och applicera rätt förläggningssätt i dina övriga ritningar.

  • Identifiering av kanalisation
  • Applicera förlägggningssätt automatiskt utifrån kanalisationsriningen

Mängdsummering

Alla tolkade komponenter, kablage och kanalisation summeras automatiskt i tabeller. Justera antal, lägg till E-nummer och exportera till Excel eller integrationer.

  • Automatisk summering
  • Justering av mängder
  • Export till CSV/XLSX eller externa kalkylsystem

Fråga dokumenten

Ställ frågor direkt till dina uppladdade dokument. AI svarar på skallkrav, tider och villkor i förfrågningsunderlaget.

  • Chatta med dokumenten
  • Snabbt hitta relevanta krav
  • Förstå administrativa föreskrifter